|
Per
tutte le serie i profili utilizzati sono in lega di alluminio 6060 UNI
9006 con stato fisico di fornitura T5, con tolleranze dimensionali secondo
1/2 UNI 3879, il sistema di tenuta è a giunto aperto per le finestre ed a
doppia o tripla battuta per le porte. Le tipologie realizzabili sono le
seguenti :
|
|
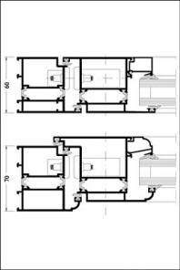
FINESTRE Costruzione:
Costruzione universale per finestre non isolate.
Estetica:
Ante anche in versione design con particolare profilo arrotondato.
Dimensione profili:
Telaio 50mm, anta finestra 60mm con sormonto interno da 10mm.
Caratteristiche:
Guarnizione di tenuta centrale con precamera di grande dimensione. Tutte
le guarnizioni sono in EPDM.
Apparecchiature:
Profili con camera europea e possibilità di montaggio di accessori
standard.
Tipologie di apertura:
Finestre ad 1 anta, 2 ante, anta ribalta, anta anta ribalta, vasistas,
scorrevole complanare e ribalta, porta a libro. |

 |
Costruzione:
Costruzione universale per finestre a taglio termico.
Isolamento termico:
Gruppo prestazionale 2.1 secondo DIN 4108. Valore UR compreso tra 2 e 2.8
W/m2°K.
Estetica:
Ante anche in versione design con particolare profilo arrotondato.
Dimensione profili:
Telaio 60mm, anta finestra 70mm con sormonto interno di 10mm.
Caratteristiche:
Guarnizione di tenuta centrale con precamera di grande dimensione. Tutte
le guarnizioni sono in EPDM.
Apparecchiature:
Profili con camera europea e possibilità di montaggio di accessori
standard.
Tipologie di apertura:
Finestre ad 1 anta, 2 ante, anta ribalta, anta anta ribalta, vasistas,
scorrevole complanare e ribalta, porta a libro.
|

 |
| PORTE
Costruzione:
Costruzione universale per porte d'ingresso non isolate.
Dimensione profili:
Telaio 50mm, anta porta 50mm complanare all'interno ed all'esterno.
Caratteristiche:
Doppia guarnizione di battuta all'interno ed all'esterno. Tutte le
guarnizioni sono in EPDM.
Apparecchiature:
La serie comprende serrature ed accessori di sicurezza contro
l'effrazione.
Tipologie di apertura:
Portoncini d'ingresso ad 1 o 2 ante, con apertura verso l'interno o verso
l'esterno. Porte e vetrine per negozi con profili speciali rinforzati.
|

 |
Costruzione:
Costruzione universale per porte d’ingresso a taglio termico.
Isolamento termico:
Gruppo prestazionale 2.2 secondo DIN 4108. Valore UR compreso tra 2.8 e
3.5 W/m2°K
Estetica:
Telaio ed anta anche nella versione design con particolari profili
arrotondati.
Dimensione profili:
Telaio 60mm, anta porta 60mm complanare all’interno ed all’esterno.
Telaio 70mm, anta porta 70mm con doppia battuta interna da 10mm, nella
versione design.
Caratteristiche:
Doppia o tripla guarnizione di battuta all’interno ed all’esterno.
Tutte le guarnizioni sono in EPDM.
Apparecchiature:
La serie comprende serrature ed accessori di sicurezza contro
l’effrazione.
Tipologie di apertura:
Portoncini d’ingresso ad 1 o 2 ante, con apertura verso l’interno o
verso l’esterno. Porte e vetrine per negozi con profili speciali
rinforzati.
|

 |